Architekturbüro Kretschmar + Dr. Borchers Freie Architekten
Impressum
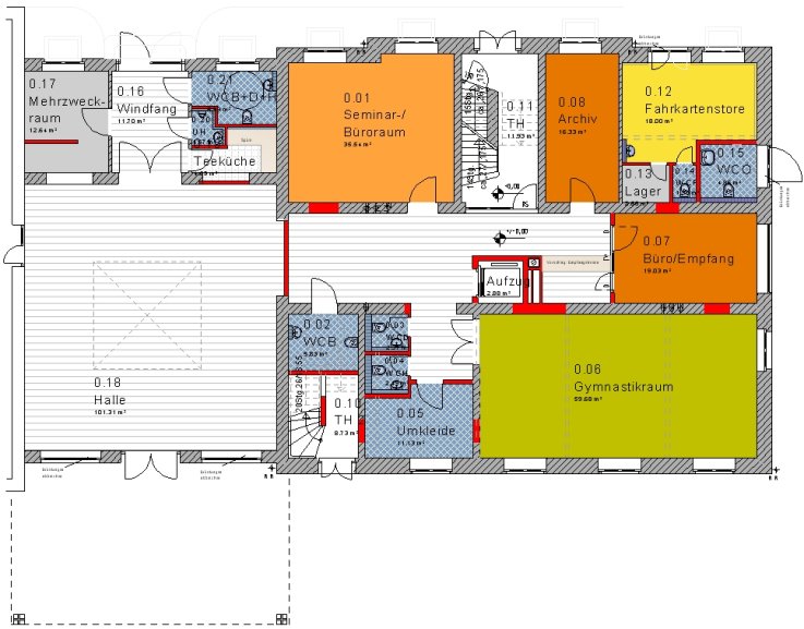
Bahnhof Radebeul Ost (Ostflügel) Sanierung und Umnutzung
Grundriss EG